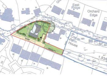
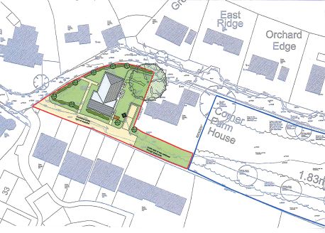
Mulberry Devenish Lane – Bayford – Wincanton Somerset
An individually designed 4-bedroom bungalow featuring open plan living in the sought-after village of Bayford. This sort after postcode location for locals is situated next to Stroke Trister. The Stoke part of the name means a place or dairy farm with the Trister part being a corruption of the name of Richard del Estre who was lord of the manor in the 12th century. Stoke Trister passed with Cucklington to the Phelips family in 1765 and was then held with Montacute At Hopkins Estates, with stunning Somerset property for sale, we use state-of-the-art plant and machinery and have a dedicated team of highly experienced and skilled craftsmen who are instilled with a “right-first-time” attitude and take great pride in their work. You can view our new Somerset houses for sale.
RELATED ARTICLES
Updates from Hopkins Estates
Hopkins Estates Ready-mix Concrete Trucks in Wiltshire.
Hopkins Estates Ready-mix Concrete Trucks in Wiltshire Hopkins Estates Introduces Four State-of-the-Art Ready Mix Concrete Trucks to service its commercial and domestic custo...Beton Blocks in Construction
Concrete Beton blocks also known as interlocking concrete blocks, are another type of block that is widely used in construction projects across the country.What are interl...









