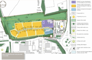
Currently in planning we in Swindon we have 100 dwellings, a 65 bed care home and a commercial site area.



RELATED ARTICLES
Updates from Hopkins Estates
Hopkins Estates Ready-mix Concrete Trucks in Wiltshire.
Hopkins Estates Ready-mix Concrete Trucks in Wiltshire Hopkins Estates Introduces Four State-of-the-Art Ready Mix Concrete Trucks to service its commercial and domestic custo...Beton Blocks in Construction
Concrete Beton blocks also known as interlocking concrete blocks, are another type of block that is widely used in construction projects across the country.What are interl...