Golden Valley
- OUTSIDE
The property is entered via a paved driveway which leads to a Timber Carport for two cars and further space for multiple vehicles. Opposite the Carport is an outbuilding that could be used as a home office/ gym or storage. There is a mature wrap-around-garden which is mainly laid to lawn with various boarding plants, shrubs and trees. The rear garden is a wonderful space which opens out into open countryside with far reaching views. - LOCATION
Located to the northern side of Charlton Horethorne village, approximately 5 miles to the south of the A303 and within 5.2 miles of the historic town of Sherborne. Charlton Horethorne, is a highly regarded village, set in picturesque rolling countryside on the Dorset/Somerset border. The thriving village community benefits from local amenities including a village shop, a primary school, a public house, a parish church, and an active and well supported village hall. The nearby historic Abbey town of Sherborne is a hub of opportunities, offering an array of retail outlets, recreational and educational facilities, including supermarkets and renowned private and public schools. Golden Valley is situated in a strategically accessible position, with the A303 facilitating travel between the M5 to the west and the M3 to the east. There are mainline stations available at both Templecombe, Castle Cary and Sherborne, providing convenient rail links to London Waterloo and Paddington. - SERVICES:
Mains water, electricity, mains drainage, oil fired central heating, solar panel heating and telephone all subject to the usual utility regulations. - DIRECTIONS:
Directions from Sherborne and Wincanton take the B3145 to the centre of the Village. By the Kings Arms public house turn onto North Road and proceed for about 475 metres. At the fork turn right onto Maperton Road and at the first junction Golden Valley Farm entrance can be found. - COUNCIL TAX BAND: F
- TENURE: Freehold
- VIEWING: Strictly by appointment through the agents.
Charming 5-Bedroom Rural House with extensive garden and double garage.
Nestled in a peaceful setting in a sought-after village, this former farmhouse is currently undergoing a full renovation to reveal a contemporary home with charming period features. Situated in the beautiful village of Charlton Horthorne, Golden Valley Farmhouse is currently being renovated to an exceptionally high standard with any potential buyer having the option to become part of the design process to really make this home their own.
This spacious farmhouse will be tastefully renovated into a wonderful family home with the twist of contemporary living combined with traditional features. Ideal for those looking for a serene country lifestyle whilst being close to local amenities.
To the ground floor there is a spacious, light and airy living room with feature fireplace, this room is ideal for cosy winter nights in front of the fire or entertain family and friends in the summer as French doors lead out onto the garden. The open plan kitchen, dining, family room will most definitely be the heart of the home with stone flooring and large windows which flood the room with natural light. The kitchen will be fitted with an array of cabinets which provide a wealth of storage for all your culinary essentials. A central island serves as a breakfast bar for sociable dining. Cook up a feast for family and friends and savour the cooking process whilst soaking up views over the beautifully maintained garden.
Peep through to the laundry room, also to be fitted with several cabinets and Belfast sink, it’s perfect for muddy boots and paws after a stroll around the village. Also leading off the kitchen and for more formal occasions there is a well-proportioned dining room with French doors leading out onto the terrace.
There is also a most delightful conservatory ideal for morning coffee or star gazing in the evening, and last but not least there is a downstairs WC and home office.
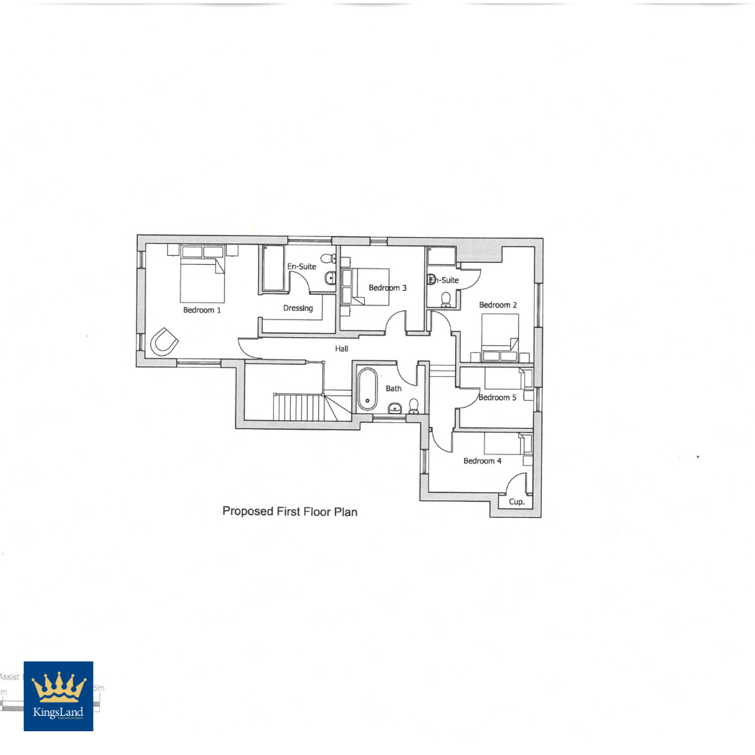
Rising to the first floor there are five light and airy bedrooms and three bathrooms. The primary bedroom is a spacious and light room with dressing area benefiting from built in cupboards and en-suite shower room off. There are a further two double bedrooms one with en-suite shower room and two generous single rooms and Family bathroom.
RELATED ARTICLES
Updates from Hopkins Estates
Hopkins Estates Ready-mix Concrete Trucks in Wiltshire.
Hopkins Estates Ready-mix Concrete Trucks in Wiltshire Hopkins Estates Introduces Four State-of-the-Art Ready Mix Concrete Trucks to service its commercial and domestic custo...Beton Blocks in Construction
Concrete Beton blocks also known as interlocking concrete blocks, are another type of block that is widely used in construction projects across the country.What are interl...


